

About Us
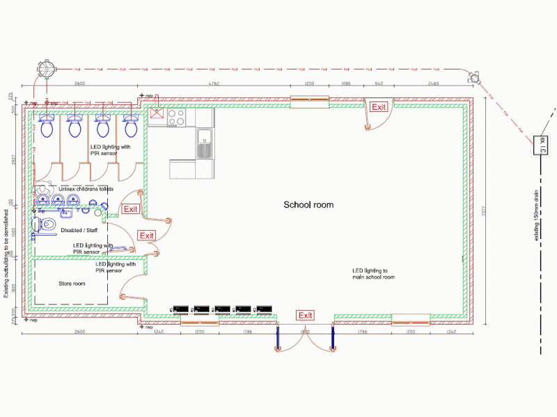
The Out of School and Holiday Club operates from a purpose built building at the back of the Nursery that was completed in December 2015 after only 18 weeks of building. Outside we have plenty of space in the garden to play ball games, purpose built play equipment and a newly tarmaced playground that can be used year round - mostly for ball games!
Inside the building, state of the art building materials and heating
mean that there is a warm and cosy environment suited to children of this age with purpose built toilets and kitchen area, motorised interactive whiteboard, computers, child sized tables and chairs and carpets that are easy to roll up and move to open up the space.
Changing times.
At a time of increasing obesity in children we believe children should be encouraged to do any sporting activity and get away from computers and sedentary activities.
It seems that other people are coming around to this way of thinking as well. Aberdeen Council is the first in Britain to remove all of the "No Ball Games" restrictions and signs - which are not legally enforcible anyway - to encourage children to get outside and take part in any sporting activity. At last - draconian and out of touch policies that serve a minority of selfish and self centred people are being dealt with by common sense!
Even on a wet day when the children cannot play outside the most popular games on the Wii in the club are the high activity ones, such as "Let's Dance". Personally we believe Banksy got it right! Lets get the children to spend less time on computers and more time doing activity and let us all help to tackle childhood obesity.
![]()

Why Smizkids511?
Back in 2005 the children in the After School Club and Holiday Club decided that they wanted to clearly identify themselves separately to the nursery and a competition was arranged to find a new name for the club.
It was decided to call the facility "Smiz Kids 511". The name has since been adopted by the organisation and is reflected in our certificate of registration with OfSTED. Although the kids chose 511 because of the trend of American shows to have numbers in them it really describes the age group of the children we care for – 5 to 11 year olds.
We are open from 08:00 until 18:00 Monday to Friday during the school holidays and from 07:45 until 08:30 for the Breakfast Club and from school closing time until 18:00 during term time.
The club is closed on all bank holidays and also between Christmas and New Year, including Christmas Eve.
![]()

The New Build 2015
With planning permission obtained in June 2015 we planned to start and complete the build between August and December in order to avoid having to stay in the Village Hall any longer than we had to. We were lucky to have only one day of rain, and because of the massive teamwork by everyone involved we got permission to occupy the building on the 11th of December, three weeks ahead of schedule, and we were issued our completion certificate on 21st December. Liz and the staff pulled together to move everything over and Smizkids started running fron the new build on Tuesday 22nd December.
We have to thank everyone involved in the build for being flexible on dates and times for everything from start to finish and pulling out all the stops and even working late nights:
Building work: Carl Kendrick with Andy and Mark
Plastering: Ben Fillary and gang
Plastic Cladding: Mick Hawkes
Electrician: David Mellor
Flooring: Joe Eccleston from Ashby Carpets
Plumber: Richard Bradshaw
Carpenter: Barry Sankey
Decorators: John & Johnny Sparks
Supplier: Simon Palmer at Travis Perkins in Burton
Project Manager, Finance Manager, Kitchen Fitter, Apprentice Plumber, Apprentice Floor Layer, Apprentice Electrician, Apprentice Carpenter, Apprentice Builder: Ian Higginbotham!
None of this would have been possible without the labour, support and love of my family - Sheila, Glenn and Laura, who all put in some long hours at times doing some hard jobs. Sheila also took over a lot of my role in the Nursery to free me up to work on the build during the last three months. The staff in the Nursery became masters at solving problems I normally dealt with during that time as well. Ken and Claire, thank you for your unwavering support and sound advice over the last 18 months. Extended family and friends for cheering from the sidelines. Richard - Thanks for just being there.
Ian Higginbotham - January 2016
Smizkids Breakfast Club and After school club
Staffing ratio: 1:8
Age Range: 4 ½ to 11
Smizkids has a spacious room, zoned for different activities, which allows the children to move freely and take part in the activities they want to. We have computers, an interactive whiteboard, a Wii plus a wide variety of games and toys.
Children who come into the Breakfast club are able to have their breakfast before we take them to school in the mornings at 8:30.
The after school club children have a snack tea once they arrive at the club (Sandwiches/hot snack & Fruit/cakes) before they take part in any activities. This is not a complete meal but meant to be a snack to tide the children over until they get home - please bear this in mind.
There is time set aside for the children to do any homework they may have.
Children are dropped off at the following schools:
Children are collected from the following schools:
Holidays 
Once your child has a placement in the After School Club their fees must be paid throughout the school year with the exception of bank holidays and Christmas week.
In case of serious illness or confinement in hospital, exceptions to normal payment agreements may be made.
Smiz Kids 511 School Holidays Scheme
Staffing ratio: 1:8
Age Range: 4 ½ to 11 (ish!)
The Holiday Clubs run in line with Leicestershire school holidays and offers full and half-day care during ALL the school holidays with the exception of the days between Christmas and New Year.
The clubs are planned well in advance, then the details are sent out to parents on the mailing list by letter. It offers a range of activities including trips out, crafts and sports. Every week of every club is planned so each week has a theme. Activities, craft work & trips out are planned to co-ordinate with this theme.
A hot lunch is provided at lunchtime and a snack tea in the afternoon (Sandwiches/Soup & Fruit/cakes). Children bring a packed lunch for any full day trips. All other drinks and snacks are provided.
The club is run on the basis of the children having 'FUN' in their holidays.
Security
To enable us to keep the children secure we ask you to complete the form showing who can collect your child from the club. If someone else is collecting your child in an emergency please notify the nursery of the arrival of this person and please ensure that they bring some clear identification with them for verification. This will allow the staff to check before allowing your child to leave the premises. We are sure you appreciate our caution in this matter as we will only hand over your child if we are sure that the person collecting them is both the right person and authorised to do so.
Hours of placement
We ask that you consider carefully the days you will require when booking as we have a duty to maintain staffing ratios at all times, and this becomes difficult if children are here longer than the time recorded for them.
If you require extra days or hours from time to time, or are going to be late collecting your child please telephone or ask, in order that we can accommodate the alteration of hours.
Transport
For Local trips two methods may be used:
The nursery vehicles:
All four vehicles have air bags and three point seat belts on all seats. The 807 also have the benefit of electric side doors.
Staff vehicles Insured for appropriate business usage and all containing seat belts for each child. For trips further afield we hire an appropriate bus that has a seat belt for each seat.
A consent form will need to be signed by parents before children are transported anywhere.
The holiday club in the summer holidays tries to have at least one outing a week to outside venues to achieve a balance for the children and we always try to run one week of sports activities including two swimming sessions a day.
Local trips and walks around the village and up to the play park are a regular part of the routine and parents are asked to sign a consent form allowing their children to take part in these activities.